Einfamilienhaus Verkauf Bag - Petőfi tér

Verkauf Bag Einfamilienhaus
122 m2Wohnfläche 4 Zimmer
75 900 000 HUF Kaufpreis
394961ID nummer
Weitere Informationen

680 m2 Grundstück

Hof Ansicht

In gutem Zustand Zustand

Tégla Struktur

14 m2 Balkon/terrasse

Gas (Umlauf) Heizung

voller Komfort Komfort

Eigene Garage Parkplatz

Ausgezeichnet Öffentliche Verkehrsmittel

Amerikanische Küche

Es gibt Zugang zum garten

1975 Baujahr

Eladásra kínálok Budapesttől 30 perc autóútra, az M3autópálya mentén fekvő Bag település rendezett, központi részén, egy 1970-es években épült, 1990-es évek végén felújított tégla szerkezetű, cserép fedésű családiházat.
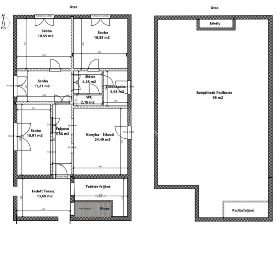
Felosztása:
-pince
-földszint: 25 nm nagyságú konyha, amely kiválóan alkalmas amerikai konyha kialakítására. 4 hálószoba, egy fürdőszoba, különálló wc, és egy előtér. A fedett terasz 14 nm nagyságú.
-tetőtér: beépítetlen, azonban az erkély kialakítva, így a lehetőség adott, hogy további 96 nm nagyságú lakóteret alakítson ki az új tulajdonos!
Különálló garázs az udvarban!
További melléképület, amely nyári konyhaként funkócionál.
Rendezett udvar.
Rövid időn belül költözhető!
Hívjon bizalommal, tekintsük meg együtt!
Borsós Attila

Borsós Attila
Inserent

Rufen Sie uns mit Vertrauen

+36-30-984- Zeig!

Andere eigene Anzeigen

Immobilienbüro
GDN Immobilien Netzwerk - Vác
+36 70 520 2966

Rufen Sie mich zurück

Ähnliche Immobilien