Family House For sale Budapest XX. district - Erzsébetfalva

For sale Budapest XX. kerület Family House
209 m2Space 6 Rooms
79 000 000 HUF Price
392613ID number
Other data

291 m2 Building lot

Courtyard View

To be renovated Condition

Brick Structure

Gas (circulating) Heating

Full comfort Comfort

Self-parking Parking

Good Public transport

No American kitchen

Exist Access to the garden

1983 Year of construction

Befektetők, kivitelezők, figyelmébe ajánljuk!

Pesterzsébet legjobb kertvárosi részén kínálunk megvételre egy nettó 209 nm alapterületű, kétszintes, téglából épült, önálló családi házat 291 nm-es telken. Az ingatlan teljes mértékben felújítandó!

A ház földszinti része a 60-as években épült, a felsőszintet a 80-as évek végén építették rá, jelenleg 2 külön bejáratú lakásra van osztva.

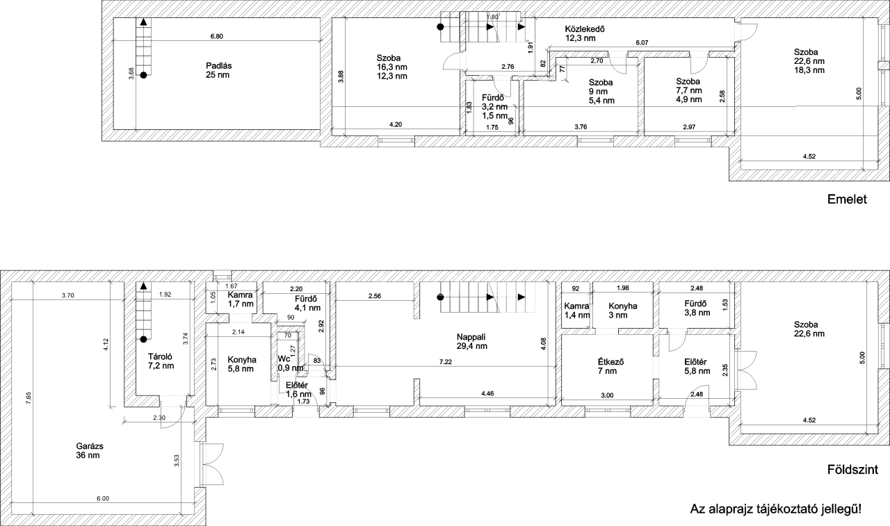
Beosztása:
földszint:
- előtér 5,8 nm,
- étkező 7 nm,
-konyha 3 nm,
-kamra 1,4 nm,
-fürdő 3,8 nm,
-szoba 22,6 nm,
-nappali 29,4 nm,
-fürdő 4,1 nm,
-előtér 1,5 nm,
- kamra 1,7 nm,
- konyha 5,8 nm,
- tároló 7,2 nm,
- garázs 36 nm,
-----------------------
129,4 nm.

Emelet:
-szoba 18,3 nm,
-szoba 4,9 nm,
-szoba 5,4 nm,
-közlekedő 12,3 nm,
-fürdő 1,5 nm,
-szoba 12,3 nm,
-helyiség 25 nm,
-------------------------
79,7 nm.

Amivel segítjük az Ön ingatlanvásárlását:
- ingyenes hitelügyintézés,
- jogi háttér,
- földhivatali ügyintézés,
- energetikai tanúsítvány,
- a vevő számára az ingatlanközvetítés ingyenes.

Irodánk 30 éves szakmai tapasztalattal áll ügyfelei rendelkezésére!

Várom szíves megkeresését!
Harmati Attila

Harmati Attila
Advertiser

Call me with confidence

+36-70-520-Show!

Other listings

Real Estate Agency
GDN Real Estate Network - Vác
+36 70 520 2966

Call me back

Similar properties