Semidetached house For sale Dunaharaszti - Sas utca

For sale Dunaharaszti Semidetached house
160 m2Space 4 Rooms
186 000 000 HUF Price
391880ID number
Other data

466 m2 Building lot

Courtyard View

Newly built Condition

Brick Structure

20 m2 Balcony/terrace

Heat pump Heating

Double comfort Comfort

Own garage Parking

Medium Public transport

American kitchen

Exist Access to the garden

2026 Year of construction

Tópark Lakópark Dunaharaszti!

Modern kialakítású, kétszintes ikerházfél eladó, nyugodt kertvárosi környezetben, átgondolt alaprajzzal és korszerű műszaki tartalommal.

A 38 hektáros, zárt lakópark egyedülálló szolgáltatásokat biztosít lakói számára, valódi resort hangulatot teremtve a mindennapokban.

Lakóparki szolgáltatások
• étterem
• wakeboard pálya
• homokos strand és napozó sziget
• kivilágított futópálya
• portaszolgálat
• horgászási lehetőség
• privát sportközpont
(kondipark, tenisz-, lábtenisz- és grundfoci-pálya)
• játszótér
• kutyafuttató

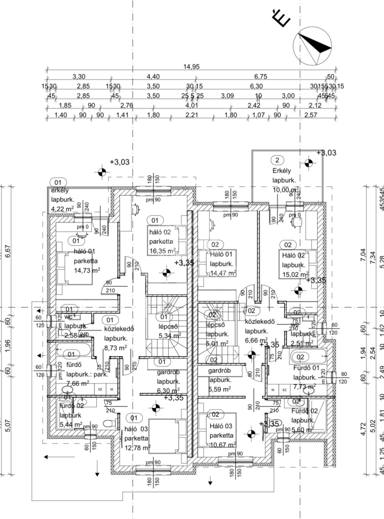
Helyiségbeosztás:

A földszinten tágas, világos amerikai konyhás nappali–étkező kapott helyet, amely közvetlen terasz- és kertkapcsolattal rendelkezik. Ezen a szinten található egy fürdőszoba WC-vel, az előszoba és a közlekedő, valamint a lakótérből is megközelíthető garázs.

Az emeleten három hálószoba biztosít kényelmes életteret, továbbá két fürdőszoba, külön WC és egy gardrób került kialakításra. A helyiségek jól bútorozhatók, a belső elrendezés praktikus és jól szeparált. Az erkély az egyik hálón keresztül közelíthető meg.

2-es (jobb oldali) ikerházfél: 160 m² lakótér

Földszint - 87 m²
• Előszoba + közlekedő: 9 m²
• Fürdő + WC: 4 m²
• Amerikai konyhás nappali–étkező: 40 m²
• Garázs: 24 m²
• Terasz: 10 m²

Emelet - 73 m²
• Közlekedő: 7 m²
• Szoba: 11 m²
• Szoba: 14 m²
• Szoba: 15 m²
• Fürdő: 8 m²
• Fürdő: 6 m²
• WC: 3 m²
• Gardrób: 6 m²
• Lépcső: 6 m²
• + Erkély: 10 m²

Saját telekrész: 466 nm

️ Műszaki leírás:

Az ingatlan korszerű építési technológiával, minőségi anyaghasználattal készül.
• Falazat: Porotherm 30-as tégla, 15 cm EPS hőszigeteléssel
• Tető: monolit födém, lapostetős kialakítás, antracit színű fémlemez fedéssel
• Nyílászárók: 3 rétegű, antracit színű műanyag ablakok, hőszigetelő üvegezéssel, rejtett redőnytok előkészítéssel
• Árnyékolás: elektromos redőny előkészítés
• Fűtés–hűtés: korszerű klímás rendszer (fan-coil helyett), helyiségenkénti szabályozással
• Melegvíz-ellátás: energiatakarékos rendszer
• Szellőzés: gépi elszívás a vizes helyiségekben
• Elektromos rendszer: modern kapcsolók, dugaljak, okosház-előkészítés
• Napelem: napelem előkészítés kiépítve
• Burkolatok: választható hideg- és melegburkolatok, igényes szaniterek
• Kert: saját kertkapcsolat, kerítéssel leválasztva
• Parkolás: garázs + további felszíni parkolási lehetőség

Az ingatlan megfelel a mai energetikai és komfort elvárásoknak, alacsony fenntartási költségek mellett biztosít magas lakókomfortot.

Elhelyezkedés

TESCO, ALDI, LIDL és KFC 3 percen belül elérhető.
Az M0-s autóút gyorsan megközelíthető, Budapest kb. 10 km távolságra található.

AZ ADATOK TÁJÉKOZTATÓ JELLEGŰEK!

Irodánk 30 éves szakmai tapasztalattal áll ügyfelei rendelkezésére.
Várom szíves megkeresését.
Borsós Attila

Borsós Attila
Advertiser

Call me with confidence

+36-30-984-Show!

Other listings

Real Estate Agency
GDN Real Estate Network - Vác
+36 70 520 2966