Lakás (téglaépítésű) Eladó Budapest VIII. kerület - Kálvária tér

Eladó Budapest VIII. kerület Lakás (téglaépítésű)
68 m2Alapterület 2 Szoba
347 928 €(~ 126 962 406 Ft)
Hitelkalkuláció folyamatban... Loading
393997Azonosító
További adatok

Utcai Kilátás

Új Állapot

Tégla Szerkezet

8 m2 Erkély/terasz

Hőszivattyú Fűtés

Összkomfort Komfort

Garázs/beálló vásárolható Parkolás

Emelet 4

Van Lift

Kiváló Tömegközlekedés

Amerikai konyhás

Nincs Kertkapcsolat

2026 Építés éve

Délkeleti Tájolás

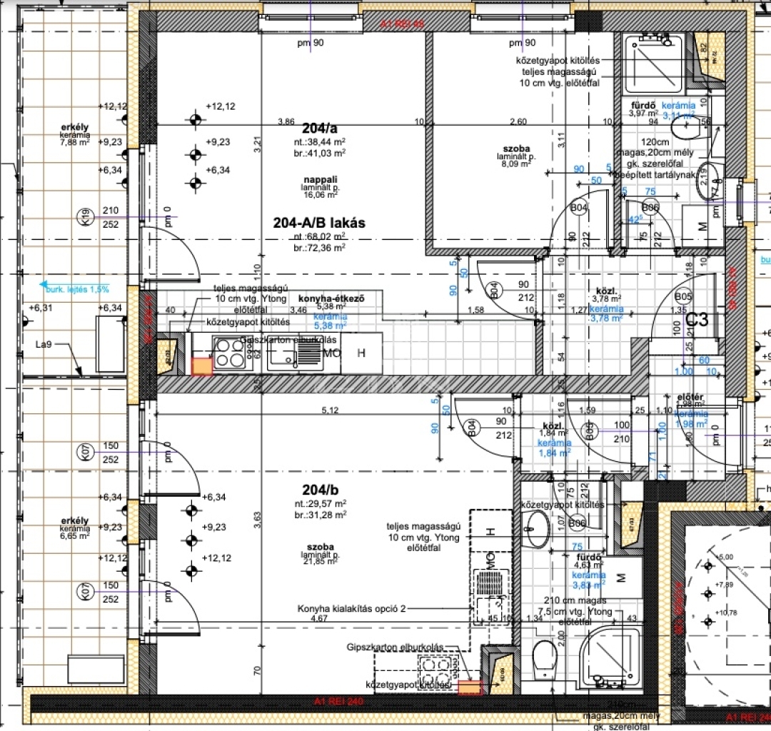
TÁGAS CSALÁDI OÁZIS ÓRIÁSI ERKÉLLYEL: PRÉMIUM A+ LAKÁS A KÁLVÁRIA TÉRNÉL

Eladó egy kiemelkedő adottságú, 68 négyzetméteres, 4. emeleti, 2 szobás, új építésű lakás a VIII. kerület legszebb, rehabilitált részén. Az ingatlan ékköve a 8 négyzetméteres, tágas erkély, amely valódi kiterjesztése a nappalinak. Ez a lakás azoknak készült, akik nem akarnak kompromisszumot kötni a belvárosi közelség és a tágas, élhető terek között.

A 2026-ös átadású lakás elosztása ideális családok részére: nagyvonalú közösségi tér, szeparált hálószobák és duplakomfort biztosítja a zavartalan mindennapokat. A modern gépészet és a kiváló szigetelés révén a fenntartási költségek egy jóval kisebb lakás rezsijével vetekednek.

Műszaki tartalom:
- Energetikai besorolás: A+ (rezsibiztos otthon)
- Fűtés és hűtés: Levegő-víz hőszivattyú, egyedi Panasonic fan-coil rendszer minden helyiségben.
- Erkély: 8 nm-es, fedett kültéri pihenőhely.
- Szigetelés: 20 cm-es prémium homlokzati hőszigetelés.

KÖRNYÉK ÉS LOKÁCIÓ
A Kálvária tér megújuló parkjai, játszóterei és az egyetemek (NKE, Semmelweis) közelsége miatt ez a környék a fiatal családok és értelmiségiek kedvence. A közlekedés kiváló: M4 metró, 4-6-os villamos és számos buszjárat segíti a gyors városi mozgást.

A lakáshoz a teremgarázsban saját parkolóhely vásárolható 10 millió forintos irányáron. Az ingatlan modern berendezéssel, 2026. áprilisi átadással kerül birtokba.

Várom megtisztelő hívását a hét bármely napján a részletes műszaki adatokkal és a megtekintéssel kapcsolatban.
Harmati Attila

Harmati Attila

Hívjon bizalommal

+36-70-520-Mutasd!

További hirdetéseim

Ingatlaniroda
GDN Ingatlanhálózat - Vác
+36 70 520 2966