Családi ház Eladó Dunaharaszti - Fő út

Eladó Dunaharaszti Családi ház
109 m2Alapterület 3 Szoba
125 000 000 Ft Ár
Hitelkalkuláció folyamatban... Loading
392764Azonosító
További adatok

1562 m2 Telek

Kertre néző Kilátás

Közepes Állapot

Tégla Szerkezet

38 m2 Erkély/terasz

Gáz (konvektor) Fűtés

Összkomfort Komfort

Saját garázs Parkolás

Kiváló Tömegközlekedés

Nem Amerikai konyhás

Van Kertkapcsolat

1970 Építés éve

Eladó önálló családi ház nagy telekkel Dunaharasztiban!

Dunaharaszti frekventált részén az Óvárosban nettó 108,5 nm alapterületű, tégla építésű, önálló családi házat kínálunk megvételre 1562 nm-es telken.
A telek övezeti besorolása: LKe3.
Mérete: 25 x 62 méter.

Az ingatlan több lehetőséget rejt magában, korszerűsítés után kényelmes, élhető otthon lehet nagy telekkel.
Elhelyezkedése miatt vállalkozások számára is kiváló lehetőség
(régen kertészet működött itt).

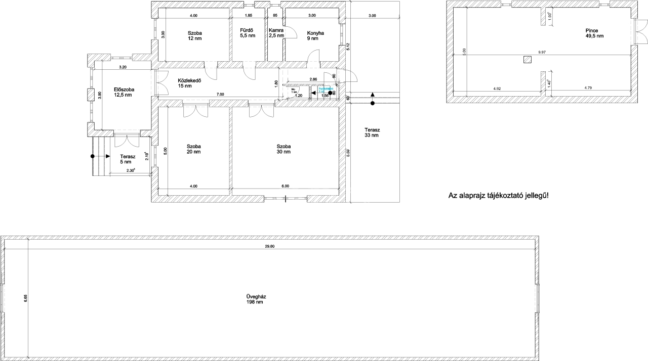
A ház beosztása:
- előszoba 12,5 nm,
- közlekedő 15 nm,
- szoba 12 nm,
- szoba 20 nm,
- szoba 30 nm,
- fürdőszoba 5,5 nm,
- WC 1,0 nm,
- kamra 2,5 nm,
- konyha 9,0 nm,
- padlásfeljáró 1,0 nm,
---------------------------------
összesen: 108,5 nm
+ terasz 33 nm,
+ terasz 5,0 nm,
+ pince 49,5 nm.

A udvarban található még, egy 198 nm-es üvegház, valamint egy tároló.

A telken fúrt kút van.
Minden közmű a házba bekötve.

Az ingatlan elhelyezkedése kiváló, HÉV- megálló a közelben.
Iskola, óvoda, bölcsöde gyalogosan néhány perc alatt elérhető.

Amivel segítjük az Ön ingatlanvásárlását:
- ingyenes hitelügyintézés,
- jogi háttér,
- földhivatali ügyintézés,
- energetikai tanúsítvány,
- a vevő számára az ingatlanközvetítés ingyenes.

Irodánk 30 éves szakmai tapasztalattal áll ügyfelei rendelkezésére!

Várom szíves megkeresését!
Borsós Attila

Borsós Attila

Hívjon bizalommal

+36-30-984-Mutasd!

További hirdetéseim

Ingatlaniroda
GDN Ingatlanhálózat - Vác
+36 70 520 2966