Locuinta (caramida) Vânzare Budapest IV. Cartier - Árpád út

Vânzare Budapest IV. kerület Locuinta (caramida)
83 m2Suprafaţa 2 + 1 Camere
79 500 000 HUF Preţ
393503Identificare
Mai multe detalii

Stradal Vedere

Stare medie Stare

Caramida Structură

Gaz Încălzire

Confort 1 Confort

Pe stradă, în loc public Parcare

Etaj 2

Inexistent Lift

Excelent Transport public

Nu Bucătarie deschisă

Inexistent Acces la grădină

1914 An construcție

Sud Orientare

BEFEKTETŐK, KIVITELEZŐK ÁLMA ÚJPEST SZÍVÉBEN!
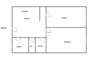
Két lakássá osztható, 83 nm-es nagypolgári lakás a Metrótól pár lépésre! Eladó a IV. kerület központi részén, az Árpád úton egy kivételes átalakítási lehetőségeket rejtő, 83 m²-es, 2. emeleti, utcai nézetű, napfényes nagypolgári lakás. A lakás jelenleg átlagos/ igény szerint felújítandó állapotú, ami az új tulajdonos számára tiszta lapot jelent álmai otthonának vagy egy magas hozamú befektetés megvalósításához.
A jelenlegi elosztás: nagy étkező-konyha + nappali + két hálószoba, fürdőszoba és egy kamra. A fűtésről gázkonvektor, a melegvízről gázbojler gondoskodik.
HATALMAS POTENCIÁL , A LEHETŐSÉGEK TÁRHÁZA: A lakás igazi értéke a variálhatóságában rejlik. Két lakás egyben: Mivel az ingatlannak két külön bejárata van, két gáz és két vízórával is rendelkezik könnyedén kialakítható belőle két önálló, apartman (pl. kiadásra), amely a környék felkapottsága és a metró közelsége miatt azonnal kiadható.
A belső válaszfalak mozgathatók, így a tér teljesen újragondolható. Kényelmesen kialakítható egy tágas amerikai konyhás nappali + 3 vagy akár 4 külön hálószoba. A 3,60 méteres belmagasság nemcsak elegáns térérzetet ad, hanem lehetőséget biztosít galériák építésére is, amivel tovább növelhető a hasznos alapterület. A társasház lift nélküli, de korrekt, közepes állapotú, rendezett lakóközösséggel.
A lokáció verhetetlen: Az M3-as metró (Újpest-központ) mindössze 150-200 méterre található, így a belváros percek alatt elérhető. A közelben piac, kormányablak, bevásárlási lehetőségek, iskolák és gyógyszertárak mind sétatávolságra vannak. Ez az ingatlan tökéletes választás azoknak, akik látják a fantáziát a terek újraformálásában, vagy olyan befektetést keresnek, ahol egy ingatlan áráért két bérbeadható lakást nyerhetnek. Jöjjön el, nézze meg, és tervezze meg új otthonát vagy befektetését! Várom hívását a hét bármely napján!
Borsós Attila

Borsós Attila
Agent de publicitate

Contactează-mă!

+36-30-984-Arată

Mai multe anunțuri

Agenție Imobiliară
GDN Rețea de agenții imobiliare - Vác
+36 70 520 2966