Duplex Vânzare Dunaharaszti - Tópark Lakópark

Vânzare Dunaharaszti Duplex
160 m2Suprafaţa 5 Camere
200 000 000 HUF Preţ
392886Identificare
Mai multe detalii

509 m2 Teren

Vedere panoramică Vedere

Proprietate nouă Stare

Caramida Structură

19 m2 Balcon/Terasă

Pompă de căldură Încălzire

Dupla komfort Confort

Garaj Propriu Parcare

Mediu Transport public

Bucătarie deschisă

Existent Acces la grădină

2025 An construcție

Dunaharasztin a Tópark Lakóparkban eladásra kínáljuk egy újépítésű ikerház mindkét felét.

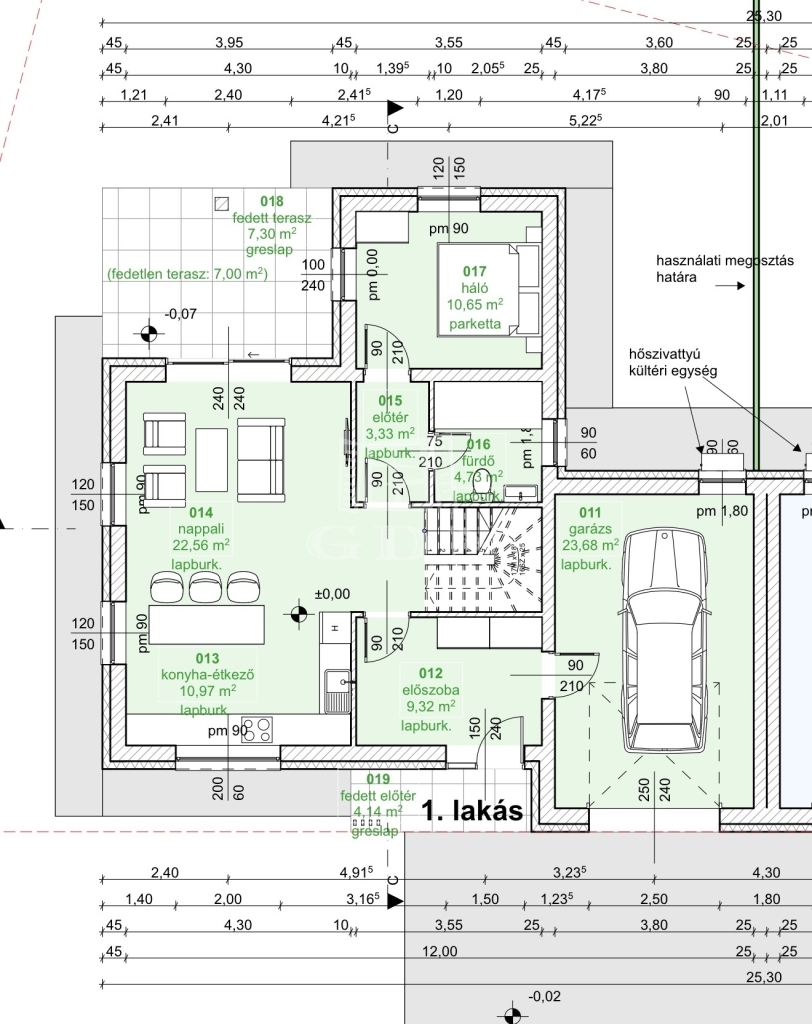
1. lakás: nettó 126 nm alapterület + 24 nm garázs + 19 nm terasz, 509 nm telekterület, 200.000.000 Ft

2. lakás: nettó 122 nm alapterület + 24 nm garázs + 23 nm terasz, 509 nm telekterület, 160.000.000 Ft


Műszaki tartalom:

- Felmenő falak: 30 cm vastag POROTHERM 30 falazóblokk falszerkezet, 15 cm EPS hőszigeteléssel, dörzsölt kőporos vakolattal, homlokzati terveken jelölt helyeken fa homlokzatburkolati elemekkel.

- Födém: A földszint feletti födém monolit vasbeton szerkezet.

- Tetőszerkezet: összetett idomú szarusoros tető Terrán Zenit cserépfedéssel

- Lépcső: Húzott kétkarú gipszbeton lépcső

- Nyílászárók: az épületbe műanyag nyílászárók lettek betervezve, 1,1 W/m2K hőátbocsátási
tényezővel gázzal töltött kétrétegű hőszigetelt üvegezéssel, külső rétegben LOW-E üvegezéssel, antracit színű kivitelben.

- A lakás fűtése levegő-víz üzemű hőszivattyúval üzemeltetett vízkörös központi fűtés, jellemzően padlófűtéssel, kiegészítő radiátorokkal.


A lakópark 38 hektáron épül egy tó köré,
- étteremmel,
- wakeboard pályával,
- homokos stranddal,
- napozó szigettel,
- kivilágított futópályával,
- saját portaszolgálattal,
- horgászási lehetőséggel,
- privát sportközponttal
(kondipark, tenisz-, lábtenisz-, grundfoci-pálya),
- játszótérrel
- és kutyafuttatóval.

A lakóparktól 3 perces távolságban TESCO, ALDI, LIDL, KFC található.

Dunaharasztiból az M0-ás autóút pár perc alatt megközelíthető,
a főváros kb.10 km-es távolságban van.

AZ ADATOK TÁJÉKOZTATÓ JELLEGŰEK!

Irodánk 30 éves szakmai tapasztalattal áll ügyfelei rendelkezésére!

Várom szíves megkeresését.
Harmati Attila

Harmati Attila
Agent de publicitate

Contactează-mă!

+36-70-520-Arată

Mai multe anunțuri

Agenție Imobiliară
GDN Rețea de agenții imobiliare - Vác
+36 70 520 2966