Locuinta (caramida) Vânzare Vác - Belvárosi

Vânzare Vác Locuinta (caramida)
91 m2Suprafaţa 3 Camere
118 300 000 HUF Preţ
392778Identificare
Mai multe detalii

Vedere panoramică Vedere

Stare bună Stare

Caramida Structură

26 m2 Balcon/Terasă

Gaz Încălzire

Dupla komfort Confort

Garaj Propriu Parcare

Etaj 2

Ultimul etaj

Inexistent Lift

Excelent Transport public

Nu Bucătarie deschisă

Inexistent Acces la grădină

Mansardă

1973 An construcție

Costuri comune 14 800 HUF

Sud Vest Orientare

Vác belvárosi ritkaság: 3 szobás lakás, dupla garázzsal és 26 m2-es tetőterasszal eladó!

Eladásra kínálunk Vác szívében egy belső kétszintes, tégla épületben lévő, jó állapotú, duplakomfortos lakást.

Az ingatlan részei, amelyek mind egy hrsz-on vannak nyilvántartva, de külön egységet képeznek. A hirdetési ár ezek összességére vonatkozik!
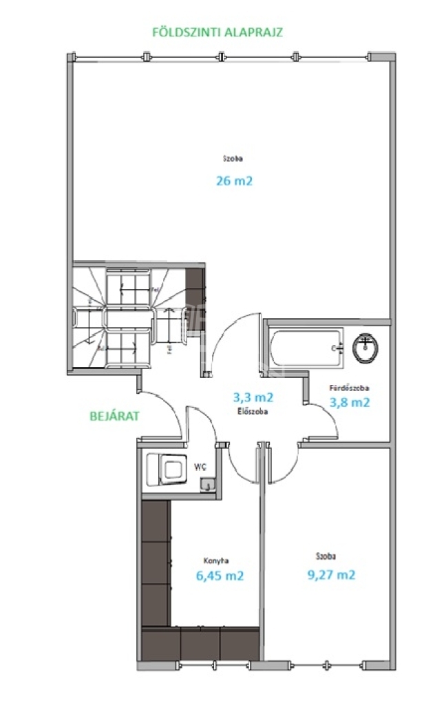
- lakás: 78 m2,
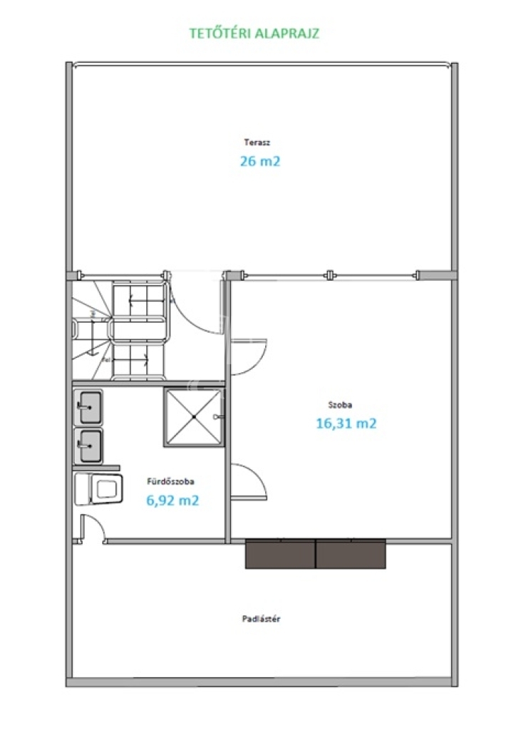
- panorámás terasz : 26 m2,
- garázs (tulajdoni lapon tároló megnevezés): 25 m2,
- tároló: 3 m2,

Az 1975-ben épült házban lévő lakás 2019-ben jelentős műszaki felújításon esett át:
• Fűtés-melegvíz: új kombi - kondenzációs gázkazán radiátor hőleadókkal, és átfolyós rendszerű melegvíz előállítással
• Nyílászárók: új kétrétegű műanyag ablakok mindenhol, új bejárati ajtó.
• Fürdőszobák: 2019-ben teljes felújításkor, vízvezetékek cseréje is megtörtént; alsó szinten kádas fürdő, a felső szinten dupla mosdóval, WC-vel, kényelmes zuhany fülkével.
• Klíma: mindkét szinten 1-1 beltéri egység a nyári komfort érdekében
• Szigetelés: A téglaház 2015-ben 15 cm-es homlokzati szigetelést kapott.
• Szobákban jó állapotú parketta burkolat
• Gépesített konyha

Az alsó szint központja a tágas, 26 m2-es nappali-étkező. Az előtérből nyílik a külön konyha – amely egy kisebb étkezősaroknak is helyet ad –, valamint egy hálószoba, egy fürdő és egy külön WC.

Az előtérből vezet lépcső a felső szintre, ami egy nagyon jól átgondolt és használható terekkel létrehozott beépített tetőtér 2,5 m-es belmagassággal.
Az emeleti előtérből a szeparált szülői lakrészbe érkezünk: a 16,5 m2-es hálószobát beépített tárolók teszik praktikussá, a közvetlen kapcsolatban lévő modern fürdő (dupla mosdóval és tágas zuhanyzóval, WC-vel) pedig teljes privát szférát és komfortot biztosít a felső szinten.

Tetőterasz:
A lakás különlegessége fenti kis előtérből nyíló 26 m2-es, DNy-i tájolású, rendkívüli kilátást biztosító tetőterasz, amelyet tetőtér megnyitásával tudtak megvalósítani.
Ez a terület igazi szabadtéri nappaliként funkcionál. A patinás háztetők, tűzfalak és kertek feletti városi panoráma, a lemenő nap fényei adják meg a váci belváros hamisítatlan hangulatát.

Társasház:
Annak ellenére, hogy a társasház 2 épületében 16 lakás van, a lépcsőházat csak 4 lakás lakói használják. Rendelkezésre áll egy belső, zárt, közös kert, ahol a gyerekek biztonságban játszhatnak.
A közös költség: 14.800,- Ft
A lakáshoz tartozó 3 m2-es tároló a földszinten található.

Garázs:
Az épület bejárata mellett kétoldalt helyezkednek el a garázsok. A 25 m2-es , elektromos árammal ellátott garázs akár 2 autó tárolását is lehetővé teszi, vagy más egyéb funkciókra is alkalmas. Igény esetén bérbeadással hasznosítható.


Az ingatlan egy csendes, rendezett mellékutcában található. Elhelyezkedése kiváló: míg Vác barokk főtere pár perces sétával elérhető, addig a Duna-parti korzó is mindössze 10 percre található.

Az utcán a parkolás ingyenes.
A lakás azonnal birtokba vehető, egyéni ízlés szerinti frissítést követően költözhető.

A lakást jelenlegi tulajdonosai „kinőtték”, de egy kétgyermekes családnak ideális bázis volt: innen az élet gyalogosan is jól szervezhető. Iskolák, óvodák, piac, busz- és vasútállomás, üzletek, orvosi rendelők és egyéb szolgáltatások szinte percek alatt elérhetőek, így az autóhasználat szinte opcionális.

Támogatások igénybevételéről egyeztetni szükséges.

Ha felkeltettem érdeklődését hívjon bizalommal.

Amiben segíteni tudjuk ingatlanvásárlását:
- jogi háttér
- földhivatali ügyintézés
- ingyenes, bankfüggetlen hitelügyintézés (CSOK és Babaváró ügyintézése is.)
- energetikai tanúsítvány elkészítése
- biztosítás
- belsőépítész
Floch Ildikó

Floch Ildikó
Agent de publicitate

Contactează-mă!

+36-20-397-Arată

Mai multe anunțuri

Agenție Imobiliară
GDN Rețea de agenții imobiliare - Vác
+36 70 520 2966

Sună-mă