Совмещенный дом Продается Budapest XXII. mикрорайон - Egyszintes ikerház mindkét fele!

Продается Budapest XXII. kerület Совмещенный дом
75 m2Площадь 3 Комната
106 000 000 HUF Цена
387777Идентификация
Прочие данные

157 m2 Yчасток

С видом на сад вид

Новостройка Cостояние

Tégla Kонструкция

19 m2 балкон/терраса

Тепловой насос отопление

plným komfortom Kомфортность

Свое место парковки парковка

Dobrý Общественный транспорт

Американская кухня

Есть Есть сад

2025 Год строительства

Délkelet Расположение

MOST ÁRCSÖKKENÉSSEL MEGVÁSÁROLHATÓ ÚJÉPÍTÉSŰ IKERHÁZ!
NE HAGYJA KI, ÚJÉPÍTÉSŰ INGATLAN, SAJÁT KERTRÉSSZEL, EBBEN AZ ÁRBAN PÁRATLAN LEHETŐSÉG A KERÜLETBEN!

OTTHON START PROGRAM FELTÉTELINEK MEGFELELŐ, FIX 3%-OS, ÁLLAMI TÁMOGATÁSÚ LAKÁSHITELLEL MEGVÁSÁROLHATÓ INGATLAN!

EGYSZINTES ÚJ ÉPÍTÉSŰ IKERHÁZ DAIKIN ALTHERMA HŐSZIVATTYÚVAL!

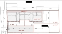
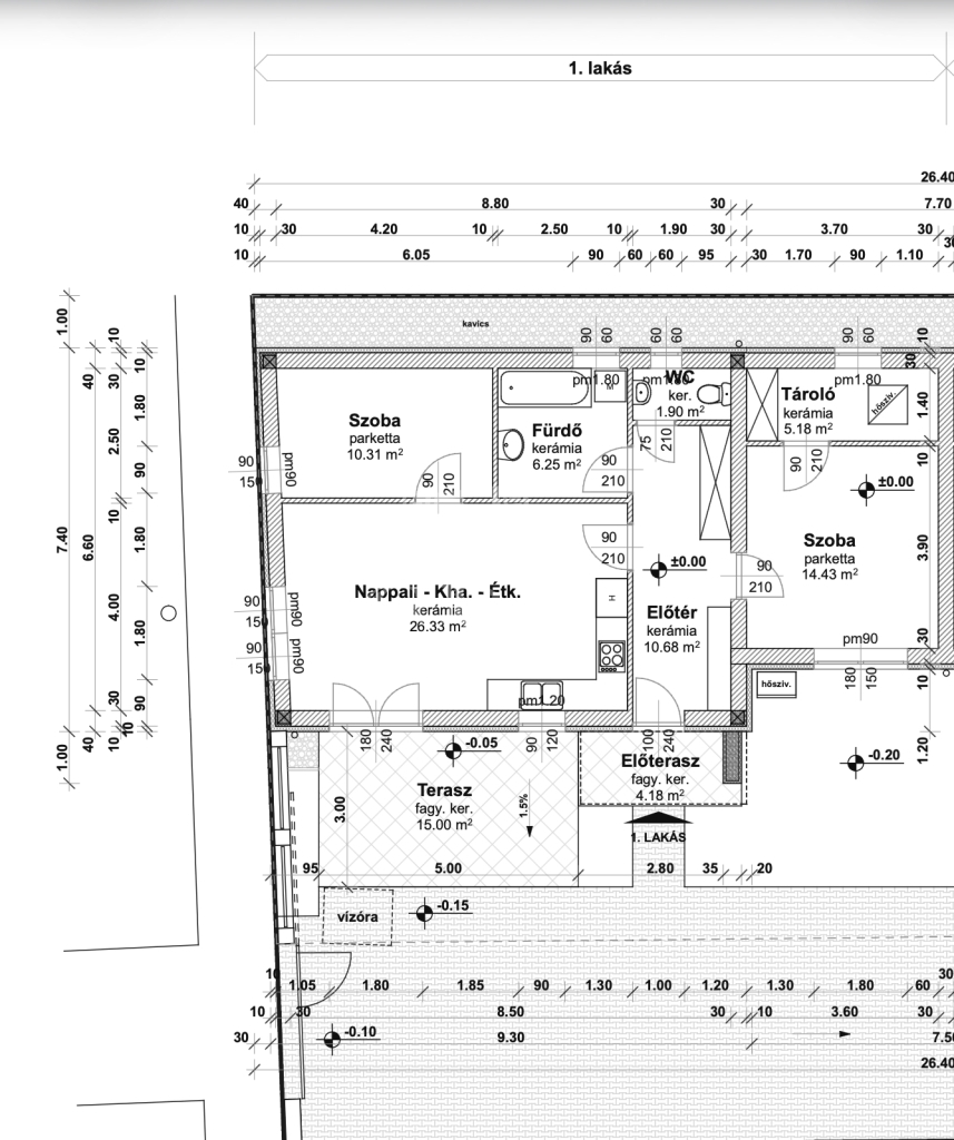
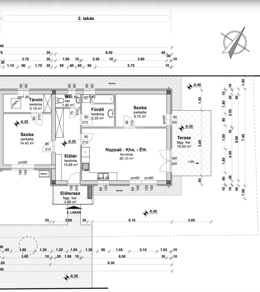
XXII. kerületben, Nagytétény, CSENDES KERTVÁROSI környezetében, nettó 75 m2-es, nappali + 2 szobás (teraszos), MODERN, ÚJ ÉPÍTÉSŰ, IKERHÁZAT kínálunk eladásra!

HELYISÉGEI FÖLDSZINTEN:
-előszoba(10,68m2), amerikai konyha nappali(26m2), 2 szoba(9,75m2, 14,43m2), fürdőszoba(6,25m2), WC(1,9m2), tároló(5,18m2), valamint 15 m2 és 3,89 m2-es terasz.

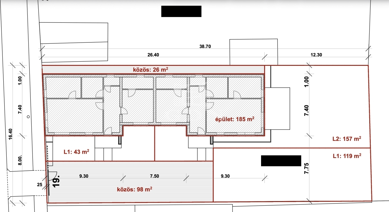
Az ingatlanhoz saját, kizárólagos használatú, lekerített TELEKRÉSZEK tartoznak.
Egy autóbeálló tartozik az ingatlanhoz, a kialakítását a vételár tartalmazza.
Az ingatlan telkén található egy fúrt kút.

Az épület: egyszintes (földszint)
Külső falazat: Leier 30 cm-es tégla, 10 cm-es Dryvit hőszigeteléssel.

Műanyag nyílászárok: FENSTHERM FUTURE vagy Kömmerling 5légkamrás, 76mm tokszélesség , 3rétegű üveg K=0,6 hőszigeteléssel.

Nagyon IGÉNYES KIVITELEZÉS, minőségi anyagok felhasználásával épül ( részletes Műszaki leírással és további anyagokkal rendelkezem.)

A fűtést és a melegvizet DAIKIN ALTHERMA HŐSZIVATTYÚ biztosítja padlófűtéssel, radiátorral kiépítve.

A vételár tartalmazza riasztó rendszer kiépítését, valamint kettő klíma kiállás kiépítését!

Külön mérőórák, szeparált telekrészek, különböző utcai bejáratok!

MÉRETEK, TÁJOLÁS, ELRENDEZÉS, AZ ALAPRAJZOKON.
( Belső átalakítás-kialakítás a Vevő igényei alapján megoldható )

KIVÁLÓ KÖZLEKEDÉSI LEHETŐSÉGEK, iskola, óvoda, bölcsőde, rendelő, Campona, Lidl, Aldi minden a közelben.

TERVEZETT ÁTADÁS: 2026. negyedik negyedév!

A vételár NEM tartalmazza a hideg-meleg burkolatokat, redőny lamellákat, szúnyoghálókat, beltéri ajtókat, riasztóberendezést, csaptelepeket, klímaberendezést, szaniterek árait!
A munkadíj minden esetben benne van az árban.

Megtekinthető elkészült REFERENCIA munkák, OTTHON START HITEL, CSOK PLUSZ, babaváró, kedvezményes HITELEK FELVEHETŐK!
(Szükség esetén ingyenes hitelügyintézéssel)

Az ingatlan megtekintése előre egyeztetett időpontban lehetséges, akár hétvégén is. Bővebb információkkal kapcsolatban várom jelentkezését, keressen bizalommal a hét minden napján!
Borsós Attila

Borsós Attila

Звоните нам с доверием

+36-30-984- Показать

Другие объявления

Aгентств недвижимости
GDN Сеть недвижимости - Vác
+36 70 520 2966