Совмещенный дом Продается Budapest XXII. mикрорайон - Budafok kedvelt részén ÚJ Ikerház !

Продается Budapest XXII. kerület Совмещенный дом
88 m2Площадь 4 Комната
149 000 000 HUF Цена
394014Идентификация
Прочие данные

250 m2 Yчасток

С видом на сад вид

Новостройка Cостояние

Tégla Kонструкция

18 m2 балкон/терраса

Тепловой насос отопление

plným komfortom Kомфортность

Свое место парковки парковка

Kiváló Общественный транспорт

Американская кухня

Есть Есть сад

2026 Год строительства

Eladásra kínálunk Budapest XXII. kerületében Budafokon 250 m2-es kerttel rendelkező belső kétszintes, dupla komfortos, nappali + 3 szobás, összesen 87,5 m2 nettó hasznos lakóterülettel rendelkező, új építésű ikerházat.

Az ingatlan leköthető 2 db. gépkocsibeállóval - igény szerinti befejezéssel.

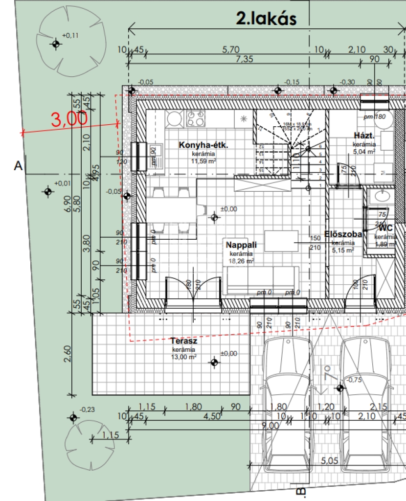
Elrendezés:

Földszint: nettó 41.93 m2 + terasz

• Nappali 18.26 m2
• Konyha - étkező 11.58 m2
• Előszoba 5.15 m2
• Mosdó 5.27 m2
• Háztartási h. 5.02 m2
• Terasz 13 m2

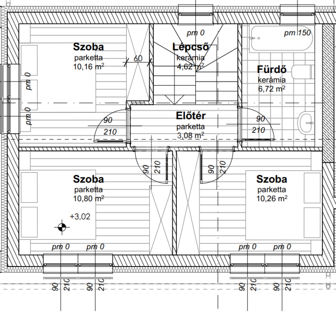
Emelet: nettó 45,64 m2

• 3 szoba 10.8 m2, 10.26 m2, 10.16 m2
• Fürdőszoba + mosdó 6.72 m2
• Előszoba 3,08 m2
• Lépcső 4,62 m2

Kert:
• 200 m2
• 2 db. autóbeálló

Műszaki paraméterek – szerkezeti leírás (részlet):
Beton sávalap. Tégla főfalak + 15 cm dryvit szigetelés.Tégla válaszfalak. Műanyag külső nyílászárók hőszigetelt üvegezéssel. Belső nyílászárók dekorfóliás ajtók. Cserép fedésű tető.

Fűtés: Az épület fűtését hőszivattyús rendszer látja el, minden helyiségben padlófűtés található.
Hideg-meleg burkolatok kiválaszthatók a műszaki leírásban rögzített árak szerint.

Tapasztalt - megbízható generál kivitelező munkájával készül a ház - referencia ingatlanjai megtekinthetőek!

Kiváló lokációval rendelkezik az ingatlan. A közelben található iskola – óvoda – bölcsőde – bevásárlóközpont.

Projekt átadás: 2026. november -december

Az ingatlant fiatal pároknak és családoknak egyaránt ajánljuk.

Amennyiben Önnek a vásárláshoz szüksége lenne hitelre egyedi kedvezménnyel,kezdeményezheti a kapcsolatfelvételt bankfüggetlen hitelügyintézőinkkel, teljesen DÍJMENTESEN.

Az ingatlan részletes ismertetése és bemutatása előre egyeztetett időpontban lehetséges, melyet nagyon rugalmasan kezelünk, akár HÉTVÉGÉN is.

Amennyiben felkeltette az érdeklődését, további kérdéseivel kapcsolatban várom jelentkezését!
Floch Ildikó

Floch Ildikó

Звоните нам с доверием

+36-20-397- Показать

Другие объявления

Aгентств недвижимости
GDN Сеть недвижимости - Vác
+36 70 520 2966