Совмещенный дом Продается Budapest XVI. mикрорайон - Szérű utca

Продается Budapest XVI. kerület Совмещенный дом
164 m2Площадь 4 Комната
121 900 000 HUF Цена
393773Идентификация
Прочие данные

280 m2 Yчасток

С видом на сад вид

В хорошем состоянии Cостояние

Tégla Kонструкция

7 m2 балкон/терраса

Газ (циркуляционный) отопление

Dupla komfort Kомфортность

Свое место парковки парковка

Kiváló Общественный транспорт

No Американская кухня

Есть Есть сад

1988 Год строительства

Délnyugat Расположение

ÖSSZEKÖLTÖZŐK, NAGYCSALÁDOSOK FIGYELEM!

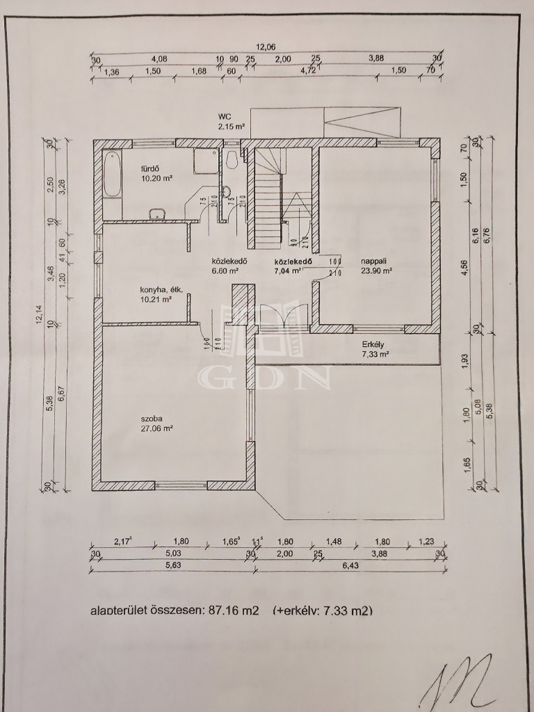
XVI.kerület Sashalom városrészén a Szérű utcában, megvételre kínálok egy bruttó 185 nm-es (nettó 168 nm), belső 2 szintes ikerház felet. (vízszintesen iker)

A lakást 2024-ben műszakilag felújították. Ennek keretében a nyílászárókat 3 rétegű műanyag ablakra cserélték redőnnyel és rovarhálóval, a teljes tetőszerkezet, beleértve a héjazat is teljesen megújult.

Az 1988-ban épült ingatlant egy saját lépcsőházon keresztül tudjuk megközelíteni, ahol helyet kapott egy tágas, délnyugati fekvésű nappali, egy keleti fekvésű hálószoba, konyha, fürdőszoba illetve külön wc. A közlekedőből érjük el a 7 nm-es erkélyt.

Szintén a közlekedőből jutunk fel a beépített teljes értékű tetőtérbe, ahol ki lett alakítva 2 db külön nyíló szoba, gardrób helyiség és egy zuhanyzós fürdőszoba. A nagyszoba további lehetőségeket rejt magába, szinte bárhogy lehet alakítani, akár 2 db szobává is.

A kizárólagos használatú saját (255 nm) kert az intimitást garantálja.
A viacolor térkő burkolattal kirakott részen, 1 autó tud megállni telken belül, az utcán 2 db autó, mely a társtulajdonossal fel lett osztva. A lakáshoz tartozik egy 15 nm-es tároló is.

A Használati megosztási szerződés szabályozza az esetleges közös terheket, előnyöket.

Közlekedése, infrastruktúrája kiváló! Sashalmi hév megálló 3 perc, akárcsak a SPAR szupermarket. Közelben patika, Iskola, Óvoda, minden is.

Azon ügyfeleimnek ajánlom ezt a remek elosztású kertvárosi ingatlant, aki nagy családdal költözne és nyitott az esetleg átalakításhoz, felújításhoz.

Az ingatlan előre egyeztetett időpontban, kizárólag ingatlanközvetítő bevonásával lehetséges!

Amennyiben hirdetésem felkeltette érdeklődését, várom hívását a hét bármely napján. tp
Floch Ildikó

Floch Ildikó

Звоните нам с доверием

+36-20-397- Показать

Другие объявления

Aгентств недвижимости
GDN Сеть недвижимости - Vác
+36 70 520 2966