Частный дом Продается Budapest XVIII. mикрорайон - Alacskai út

Продается Budapest XVIII. kerület Частный дом
111 m2Площадь 4 Комната
145 000 000 HUF Цена
393955Идентификация
Прочие данные

400 m2 Yчасток

Во двор вид

Новостройка Cостояние

Tégla Kонструкция

26 m2 балкон/терраса

Другое отопление

Dupla komfort Kомфортность

Частный гараж парковка

Kiváló Общественный транспорт

Американская кухня

Есть Есть сад

2025 Год строительства

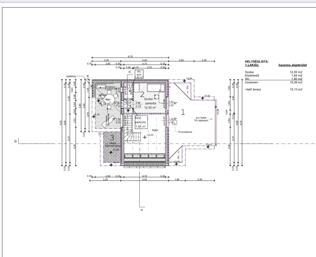
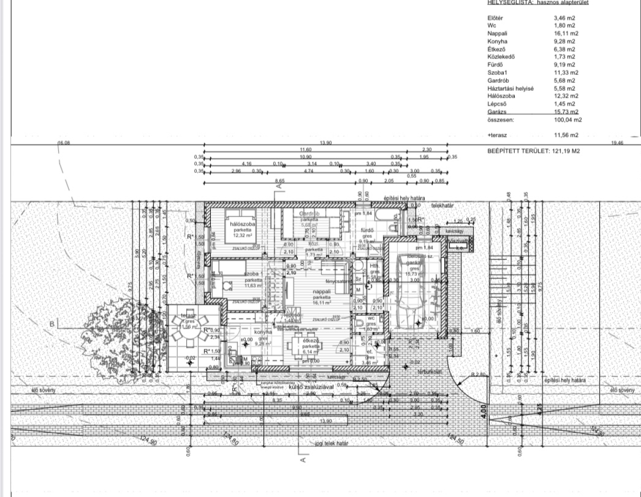
Almáskert Villa Park – Új építésű luxus családi házak a XVIII. kerület egyik legkedveltebb részén!

Fedezze fel Budapest egyik legnyugodtabb, családbarát övezetét az Almáskertben, ahol három különálló, új építésű, modern családi ház várja leendő tulajdonosait!

Mit kínálunk?
✅ Önálló, belső kétszintes házak (földszint + emelet)
✅ Nappali + 3 hálószoba
✅ 3 mellékhelyiség, kádas-zuhanyzós, dupla mosdós fürdőszoba
✅ Tágas gardrób, tetőterasz, saját parkosított kert
✅ Fűtött garázs elektromos, szekcionált kapuval

Minőség kompromisszumok nélkül!
Az otthonok a legkorszerűbb anyagokból készülnek:
25 cm-es extra hőszigetelő Ytong falazat
10 cm grafitos dryvit szigetelés
3 rétegű antracit nyílászárók, elektromos alumínium redőnyök
20 cm födémszigetelés, időtálló cserépfedés

Energiahatékony és jövőálló otthon:
Hőszivattyús fűtés és hűtés (H-tarifa)
Fan-coil és padlófűtés minden helyiségben
Előkészített napelemrendszer és elektromos autótöltő

Rugalmas kialakítás:
A burkolatok, szaniterek, beltéri ajtók egyedi igény szerint választhatók
A fürdőszobákat bútorozva adjuk át
Egyedi módosítások még kivitelezhetők az építkezés előrehaladásától függően


Ár: 145.000.000 Ft – kulcsrakész állapotban!

Babaváró, CSOK és kamattámogatott hitel igénybe vehető
Ügyvédi költséget az építtető/beruházó átvállalja
Építkezés látogatható előre egyeztetett időpontban

Ne maradjon le róla!
Hívjon bizalommal a hét bármely napján, és ismerje meg álmai otthonát személyesen!
Harmati Attila

Harmati Attila

Звоните нам с доверием

+36-70-520- Показать

Другие объявления

Aгентств недвижимости
GDN Сеть недвижимости - Vác
+36 70 520 2966