Совмещенный дом Продается Vácrátót - Csendes utca

Продается Vácrátót Совмещенный дом
77 m2Площадь 4 Комната
105 000 000 HUF Цена
386130Идентификация
Прочие данные

600 m2 Yчасток

Во двор вид

Новая Cостояние

Tégla Kонструкция

15 m2 балкон/терраса

Тепловой насос отопление

Dupla komfort Kомфортность

Свое место парковки парковка

Médium Общественный транспорт

Американская кухня

Есть Есть сад

2022 Год строительства

Délkelet Расположение

ÁRZUHANÁS !!! Vácrátóton, eladó, 2022-ben épült, modern ikerházrész – 4 szobával és saját udvarral!

Vácrátót csendes, fejlődő részén kínálunk eladásra egy 77 m²-es, 4 szobás ikerházrészt, amely minden kényelmet és korszerű műszaki megoldást biztosít új tulajdonosának. Az ingatlan egy víz, villany, csatorna bekötéssel rendelkező telken helyezkedik el, (gázvezeték az utcában) használati megosztással és kerítéssel elválasztott, saját udvarrésszel.

A DK-i tájolású ház tégla falazattal, 3 rétegű műanyag nyílászárókkal, 10 cm-es grafit szigeteléssel és cserép héjazattal épült. A fűtést korszerű hőszivattyú és padlófűtés biztosítja, a meleg vizet pedig egy 100 literes villanybojler szolgáltatja. A nyári komfortot klímaberendezés segíti.
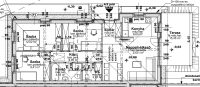
A belső elrendezés praktikus és családbarát:
•3 hálószoba
•amerikai konyhás nappali közvetlen teraszkapcsolattal
•1 fürdőszoba + WC
•1 zuhanyzó + WC
•előtér

A ház biztonsági és kényelmi felszereltsége is kiemelkedő: riasztó, redőnytokok (a nappaliban elektromos kiállással), napelem előkészítés, valamint elektromos kapu előkészítés. Parkolás az udvaron vagy az utcán lehetséges.

A környék nyugodt és biztonságos, a település folyamatosan fejlődik, és minden fontos közintézmény, mint óvoda, iskola, orvosi rendelők, művelődési ház, sportcsarnok a központban kb. 1,5 km távolságban található. Ugyanitt van ABC, virágbolt, bisztro étterem.
A település újépítésű bölcsődéje 300 m-re van, amelyet a közeljövőben tovább bővítenek.

Az egyik különlegessége a falunak, hogy itt található az ország egyik csodálatos botanikus kertje.
Vácrátót Budapest agglomerációjában helyezkedik el Váctól 15 km távolságra; könnyen elérhető a főváros, miközben megőrzi a vidéki környezet nyugalmát. Az M2-es autóúthoz mindössze 5 perc autóútra található, míg vonat- és buszközlekedés is elérhető Vácra, Budapestre, Gödöllőre.

Ha felkeltette az érdeklődésedet az ingatlan, szívesen adunk további információt, vagy egyeztethetünk egy személyes megtekintést.

Amiben segíteni tudjuk ingatlanvásárlását:
•jogi háttér
•földhivatali ügyintézés
•ingyenes, bankfüggetlen hitelügyintézés (CSOK és Babaváró ügyintézés is)
•energetikai tanúsítvány elkészítése
•biztosítás
•belsőépítész
Floch Ildikó

Floch Ildikó

Звоните нам с доверием

+36-20-397- Показать

Другие объявления

Aгентств недвижимости
GDN Сеть недвижимости - Vác
+36 70 520 2966