家庭别墅 出卖 Mende - Pusztaszentistván

出卖 Mende 家庭别墅
139 m2面积 4 房间
119 900 000 HUF 价格
393780识别码
更多信息

885 m2 地皮

外面是园子 风景

就像新 状态

Tégla 架构

24 m2 阳台

燃气(循环式) 暖气

Dupla komfort 舒适感

自己的车库 停车

Kiváló 公共交通

No 美国式厨房

有 有园子

1990 修建年

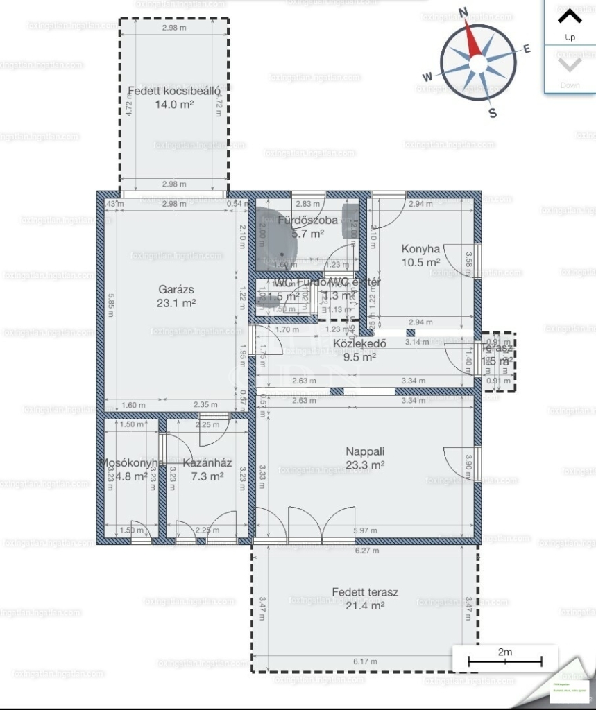
Eladó egy önálló 2 szintes, 139 m, 4 szobás családi ház Mende, Pusztaszentistván legszebb részén, lenyűgöző zöldövezetben, csendes utcában.

Az épület a 90-es években beton alapra, tégla falazattal épült, külső szigeteléssel ellátott, betoncserép tetőzettel rendelkezik (139 nm) + 22 terasz. A parkosított kertben (885 nm) medence, a kert végében kutya kennel, tárolók és baromfi tartásra kialakított alkalmas udvarrész is található a málna, eper és veteményes kert mellett.
Az előkertben egy fedett autóbeálló valamint még egy gépkocsi beálló is található.
Az ingatlanba lépve az egy légtérben található közlekedő, konyha-étkező, nappali részre érkezünk. Innen nyílik egy sarokkádas fürdőszoba, egy mellékhelyiség, a lépcsőház az emeletre, illetve a házban lévő fűtött garázs felőli bejárat.
A nagyméretű műanyag ablakoknak köszönhetően az egész élettér világos és barátságos. A nappaliból egy fedett terasz biztosítja a kertkapcsolatot.
Az emeleti szinten két félszoba, egy fürdő w.c.-vel, valamint egy erkélyes hálószoba kapott helyet, kilátással a Gödöllői dombságra.
A garázson keresztül érhető el a mosókonyha és kazánház ahonnan szintén kiléphetünk a kertbe, valamint a nagyméretű spájz is.
Az épület fűtését radiátoron keresztül gázkazán, elektromos kazán biztosítja, valamint a nappaliban található gázkandalló.

Az ár tartalmazza a teljes, igényes belső berendezést valamint a kerthez tartozó összes berendezést!!!

Mende település a 31-es főút mentén található az agglomerációban, Budapest határától 15 km-re a központtól 35 km-re. Csendes, barátságos kisváros 4250 fős lélekszámmal.
Megközelíthető elővárosi vasúttal (Kelti pu) és busszal (Stadion busz pu) is.
Településen belül helyi járat üzemel.
Közelben bölcsőde, óvoda található.
Ez az a hely, ahol az őzek, nyulak, fácánok napi vendégek ahol a csend és nyugalom nem csak egy hangzatos szólam.

Amennyiben valódi nyugalomra vágyik itt megtalálja.

Megtekintés időpont egyeztetéssel!
Harmati Attila

Harmati Attila

随时给我们打电话

+36-70-520- 给我看

更多的广告

房产代理处
GDN 房产联盟 - Vác
+36 70 520 2966

请给我回电话

相似的房产