家庭别墅 出卖 Budapest III. 市区 - Római part

出卖 Budapest III. kerület 家庭别墅
420 m2面积 10 + 2 房间
399 000 000 HUF 价格
381109识别码
更多信息

1403 m2 地皮

外面是园子 风景

已翻新 状态

Tégla 架构

26 m2 阳台

燃气(循环式) 暖气

De lux 舒适感

自己的车库 停车

Kiváló 公共交通

美国式厨房

有 有园子

2006 修建年

Dél 方向

Eladó tágas családi ház a Római-parton!

Kivételes lehetőség a természetközeli, mégis kiváló infrastruktúrával rendelkező Római-parton! Eladásra kínálunk egy 480 m²-es, 10+2 szobás, többszintes családi házat, amely számtalan lehetőséget rejt magában.
Az ingatlan pár perc sétára van a Duna-parttól, így ideális választás lehet nagycsaládosoknak, többgenerációs együttélésre, vagy akár befektetők számára kiadásra, irodának vagy rendelőnek is remekül alakítható.
Különlegessége, hogy több generáció számára is privát létet biztosít, szükség esetén az életterek leválaszthatók.

Pince szint:
- Garázs,
- Egy kisebb és egy nagyobb tároló, illetve itt a napelem kialakításához szükséges eszközök,

Földszint:
- A ház központi tere, galériás,
- nagy belmagasságú, világos,
- különálló lakrészként is használható nappalival,
- étkező-konyha résszel, amelynek közepén egy működő kút található,
- fürdővel,
- hálószobával.

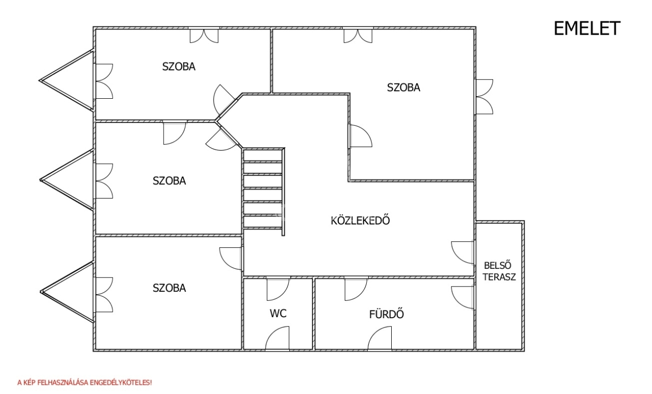
Emelet:
- 4 hálószoba,
- Fürdő,
- Galéria, amelyből a nappali szintre látni.

Udvar:
- Hatalmas telek,
- 2 db fedett garázs, és további autók beállására képes hátsó sík terület.

Főbb extrái:
- Automata garázs kapu,
- Automata öntözőberendezés,
- Több erkély,
- Felszerelt, gépesített konyha,
- Kandalló,
- Szinte minden helyiségben légkondicionáló,
- Riasztó,
- Szauna,
- Privát terasz.

Amint látja, az ingatlan megannyi lehetőséget rejt, ami nem csak saját felhasználásra, de üzleti célokra is kiválóan megfelel.

Ha egy kivételes helyen, luxus környezetben képzeli el a jövőt, ezt semmiképp ne hagyja ki!
Borsós Attila

Borsós Attila

随时给我们打电话

+36-30-984- 给我看

更多的广告

房产代理处
GDN 房产联盟 - Vác
+36 70 520 2966