家庭别墅 出卖 Érd - Riminyáki út

出卖 Érd 家庭别墅
180 m2面积 4 + 1 房间
147 000 000 HUF 价格
393167识别码
更多信息

577 m2 地皮

园子 风景

状态好 状态

Tégla 架构

燃气(循环式) 暖气

deplin confort 舒适感

自己的车库 停车

Kiváló 公共交通

No 美国式厨房

有 有园子

1970 修建年

Délnyugat 方向

Az ingatlan egyik legnagyobb előnye, hogy a lakóházon kívül a telken még az alábbi, különálló épületek is megtalálhatók:

-Önálló, külön bejáratú üzlethelyiség.
-Különálló tároló/raktár.
-Fedett gépkocsibeálló.

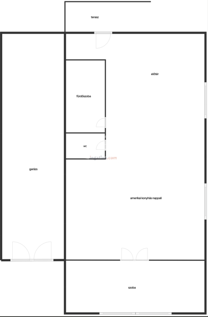
Ház:
Az ingatlan két külön lakásra osztható, így rugalmasan használható akár bérbeadásra, akár saját vállalkozás + lakhatás kombinációra is.


Alsó szinten nappali, étkező-konyha, 2 szoba és fürdő található.

Tetőtéri rész amerikai konyhás nappalival + hálóval, külön WC-vel és fürdővel rendelkezik.
Itt akár önálló bérlői egységek vagy egy nagyobb családi otthon is kialakítható.
37m2-es hosszú, szerelőaknás garázs.

Nyílászárók: vegyes típusúak (modern fa és műanyag)
Új villanyhálózat.

Elhelyezkedés: frekventált, főút menti pozíció. Jó láthatóság!
Rugalmas beosztás: különálló egységek kialakítására.
Többféle hasznosítás: lakó + üzleti funkció egy helyen.
Erős piaci kereslet: az ilyen jellegű ingatlanok hosszú távon stabil bérleti lehetőséget kínálnak (pl. irodának vagy szolgáltató egységnek is keresett).

AMENNYIBEN NEM RENDELKEZIK A TELJES VÉTELÁRRAL, segítünk Önnek megtalálni a legjobb megoldást!
BANKFÜGGETLEN hitelcentrumunk minden elérhető bank és hitelintézet ajánlatát versenyezteti az Ön kedvéért, ráadásul díjmentesen. Önnek nincs más dolga, mint elbeszélgetni munkatársunkkal, aki a hallott információk alapján versenyre hívja a bankokat, hogy Ön hosszú távon is a legjobb konstrukciót kaphassa. A legjobb ajánlatokból végül Ön választhatja ki a nyertest. Munkatársaink sokéves szakmai tapasztalattal várják Önt, előre egyeztetve akár a normál munkaidő után is.
Floch Ildikó

Floch Ildikó

随时给我们打电话

+36-20-397- 给我看

更多的广告

房产代理处
GDN 房产联盟 - Vác
+36 70 520 2966