家庭别墅 出卖 Gödöllő - Katona József utca

出卖 Gödöllő 家庭别墅
195 m2面积 8 房间
174 900 000 HUF 价格
393791识别码
更多信息

1000 m2 地皮

园子 风景

状态好 状态

Tégla 架构

20 m2 阳台

燃气(循环式) 暖气

Dupla komfort 舒适感

自己的车库 停车

Bun 公共交通

No 美国式厨房

有 有园子

1976 修建年

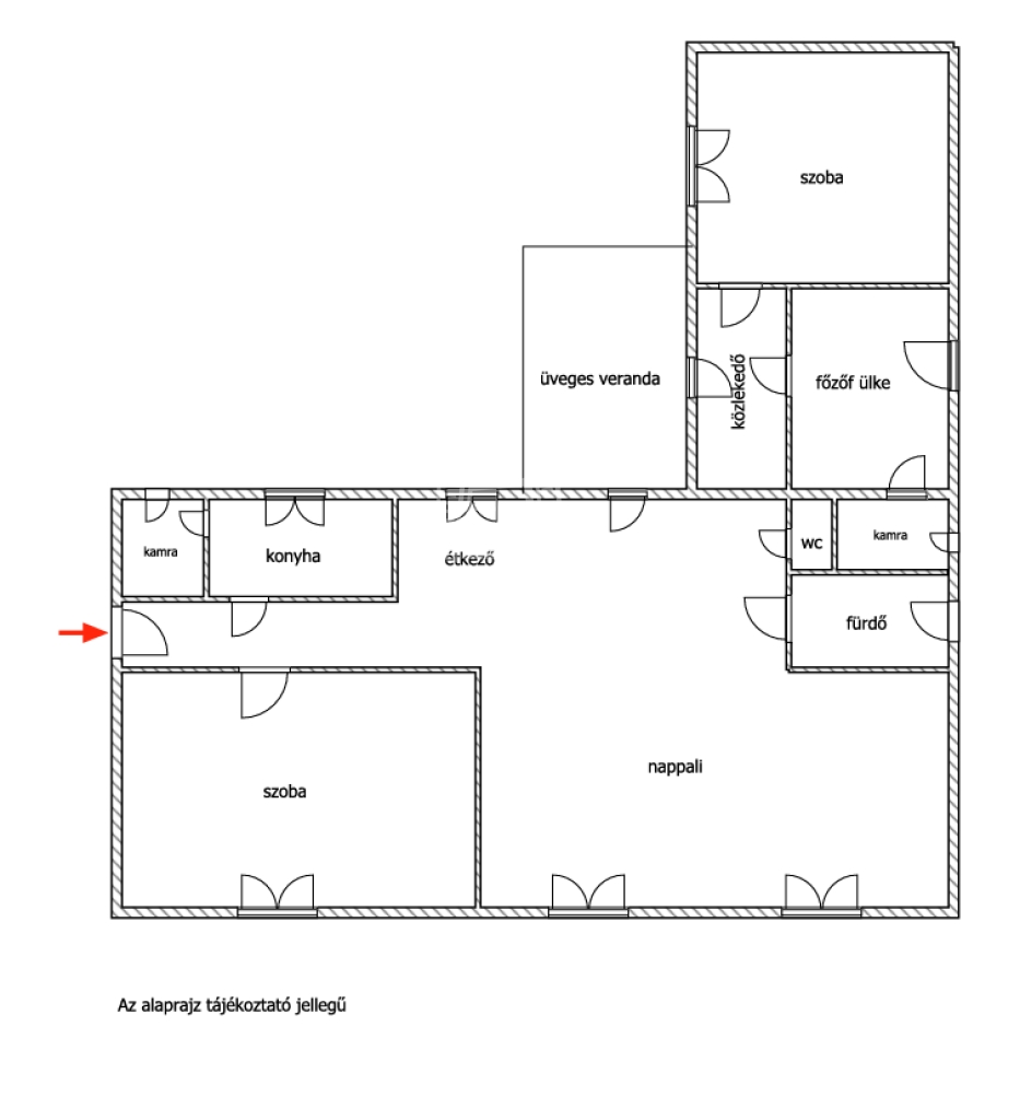
Eladásra kínálok Gödöllő kertvárosi részén egy különleges lehetőségeket rejtő 2 lakásos családiházat.
A ház lényegében 2 külön lakóház egybe építve, egy közös udvarral, amelyen nagy méretű tároló, és garázs is elhelyezkedik.
A 2 ház "L" alaklban került összeépítésre, így teljesen különálló, külön közmű órákkal rendelkezik.
Az első 1967-es tégla, cserép borítással. 3 szoba, fürdőszoba, konyha, étkező.
A második 1976. évben épült, majd 1989-ben a tetőtér került kialakításra.
A földszinten 2 szoba, konyha, fürdőszoba, előtér, a beépített tetőtérben pedig 3 szoba, közlekedő, és fürdőszoba került kialakításra.
Mind két ház fűtése gáz cirkó, radiátoros hőleadókkal, és vegyes tüzelésű kazán is rendelkezésre áll. Szintén külön fűtőberendezések.
A másdik házban a földszinten kílma is beszerelésre került.
A melegvizet gázcirkó, és villanybojler is biztosítja.
Folymataos karbantartás jellemzi az épületeket!
Hívjon bizalommal, tekintsük meg együtt!
Harmati Attila

Harmati Attila

随时给我们打电话

+36-70-520- 给我看

更多的广告

房产代理处
GDN 房产联盟 - Vác
+36 70 520 2966