家庭别墅 出卖 Váchartyán - Település szélén

出卖 Váchartyán 家庭别墅
187 m2面积 4 房间
145 000 000 HUF 价格
387730识别码
更多信息

1104 m2 地皮

全景 风景

新建 状态

Könnyűszerkezet 架构

43 m2 阳台

热泵 暖气

De lux 舒适感

自己的车库 停车

Bun 公共交通

美国式厨房

有 有园子

2026 修建年

Délnyugat 方向

ELADÓ, egyedi tervezésű, ÚJÉPÍTÉSŰ, családi ház, Váchartyánban, dupla garázzsal!

A vásárláshoz CSOK OTTHONTEREMTÉSI TÁMOGATÁS igényelhető vagy akár a "3%-os" hitel is!

Elege van már Göd, Dunakeszi, Veresegyház és Vác zsúfoltságából?
Szeretne egy élhető méretű házat, normális méretű saját kerttel?
Minőségi kivitelezésű, egyedi tervezésű, barátságos, szép otthonra vágyik, kedvező rezsivel?
Akkor Önnek találták ki ezt a házat!
Itt nem kell izgulnia, hogy körbeépítik az új házát!
Itt Váchartyán szélén, természet közelében élhet, kevés szomszéddal!

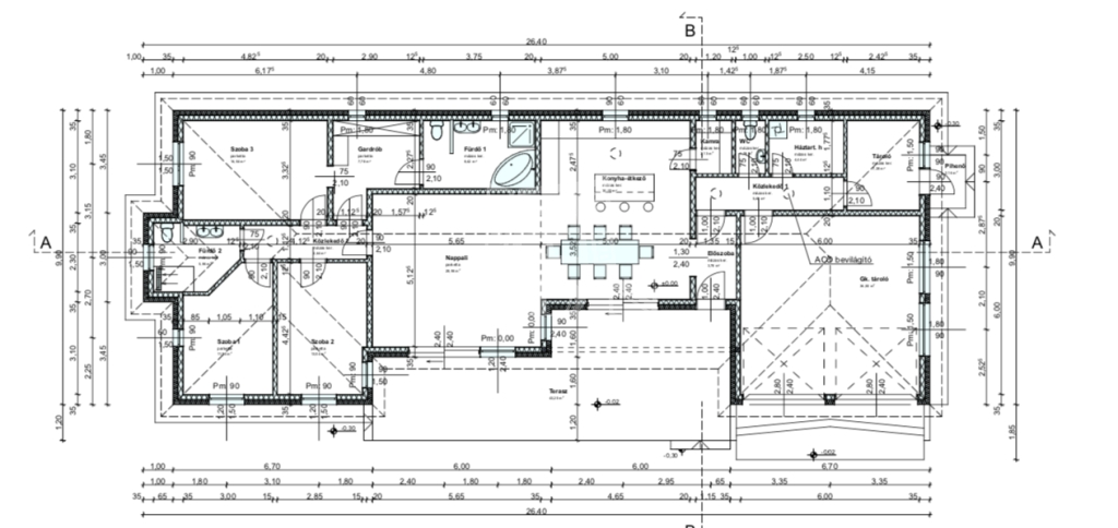
A ház praktikus elosztással lett tervezve, figyelembe véve, hogy minél élhetőbb legyen és boldog, barátságos otthont biztosítson az új Tulajdonosának és a Családjának.
Az épület minőségi anyagokból, magas szakértelemmel épül, acélvázas könnyűszerkezetes technológia alkalmazásával, melyekből közel nulla energiaigényű házak, A+ energiaosztályú épületek, passzív/aktív házak egyaránt megépíthetőek.
A tetőt cseréppel fedik be.
Az épület külső nyílászárói fokozott hőszigetelt üvegezésű műanyag szerkezetek nyíló-, bukó-nyíló, illetve fix, néhol csúsztatható kivitelben kerülnek berakásra.
Korszerű, energiahatékony, hőszivattyús fűtés lesz kiépítve, az alacsony rezsi eléréshez, így nem lesz szükség gázra a házban, tehát a gázszámlát már meg is spóroltuk.
A fűtésrendszer mellé kiegészítésnek egy kémény is kiépítésre kerül, ha az új Tulajdonos szeretne kandallót, adott lesz a lehetőség.
A belső burkolatokat, színeket az Ön ízlése szerint készítik el, a megadott értékhatáron belül.
(Természetesen lehetőség van eltérni ettől, de az ezzel járó megoldások, plusz költséggel járhatnak.)
A lakószobák és konyha falburkolata glettelésre felhordott egyszínű diszperzites falfestés lesz.
A fürdőszobákban, WC helyiségekben és mosókonyhákban csempeburkolat készül felkínált mintadarabokból választva, Megrendelői igények szerint.
A konyhában a beépített pult fölötti 60 cm-es sávok lesznek leburkolva.
Az előtér, konyha, étkező, gardrób mázas greslappal burkolt, a fürdőszoba, mosókonyha, WC burkolata csúszásmentes greslappal lesz borítva.
A nappaliban és a szobákban laminált parkettát tesznek le.
Riasztó, kábeltv és internet előkészítését is tartalmazza az ár, úgy mint a szellőzőrendszer csövezésének kiépítését.
Jelen pillanatban míg az építkezés olyan stádiumban van, még változtathatóak a belső terek, helyiségek elrendezései, a tartófalakon kívül.
Jelen tervek szerint lakás alapterülete 151,33 m2 + 36 m2-es garázs + 43 m2-es terasz.
Itt például a garázsból lehet szobát kérni, ha valakinek az az igénye vagy elegendő Neki kisebb helyiség.

Budapest (20 perc) és Vác (5 perc) is könnyedén és gyorsan elérhető autóval!
Az ingatlan elhelyezkedése tömegközlekedés szempontjából jó!
Kérje e-mailben a részletes műszaki tájékoztatót a legtöbb képpel!
További információért forduljon Hozzám bizalommal!

Tervezett átadás: Szerződéskötéstől számított min. 3-4 hónap, ez persze függ a megrendelői igényektől is.
Jelenleg tető alatt, szerkezetkész állapotban van az ingatlan és így is megvásárolható!
Hívjon mielőbb, hogy ne maradjon le Róla!

Amivel segítjük az Ön ingatlanvásárlását:
-ingyenes, bankfüggetlen hitelügyintézés (CSOK és Babaváró ügyintézése is.)
-jogi háttér
-földhivatali ügyintézés
-energetikai tanúsítvány elkészítése
-biztosítás
-belsőépítész
Harmati Attila

Harmati Attila

随时给我们打电话

+36-70-520- 给我看

更多的广告

房产代理处
GDN 房产联盟 - Vác
+36 70 520 2966

请给我回电话