Einfamilienhaus Verkauf Őrbottyán - Bajcsy Zsilinszky utca

Verkauf Őrbottyán Einfamilienhaus
118 m2Wohnfläche 4 Zimmer
124 900 000 HUF Kaufpreis
391699ID nummer
Weitere Informationen

820 m2 Grundstück

Hof Ansicht

Neubau Zustand

Tégla Struktur

20 m2 Balkon/terrasse

Gas (Umlauf) Heizung

voller Komfort Komfort

Stellplatz Parkplatz

Gut Öffentliche Verkehrsmittel

Amerikanische Küche

Es gibt Zugang zum garten

2026 Baujahr

Eladásra kínálok Őrbottyán kiváló kertvárosias részén egy önálló családiházat, amely építése most kezdődik el.
Az amerikai konyhás nappalit 3 hálószoba egészíti ki.
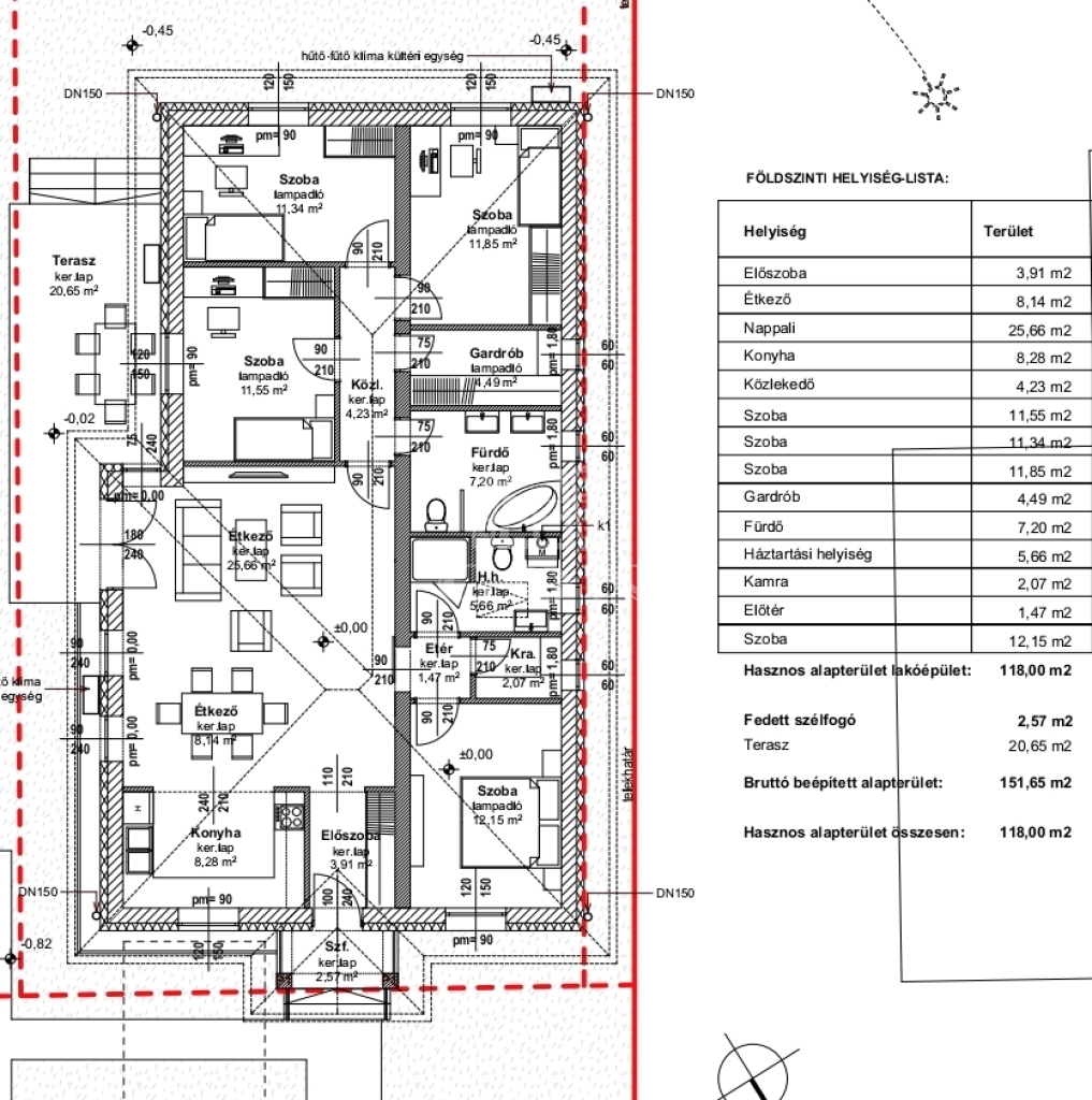
Felosztása:
Előszoba 3,91 m2
Étkező 8,14 m2
Nappali 25,66 m2
Konyha 8,28 m2
Közlekedő 4,23 m2
Szoba 11,55 m2
Szoba 11,34 m2
Szoba 11,85 m2
Gardrób 4,49 m2
Fürdő 7,20 m2
Háztartási helyiség 5,66 m2
Kamra 2,07 m2
Előtér 1,47 m2
Szoba 12,15 m2
Összesen: 118,00 m2
Fedett szélfogó 2,57 m2
Nyitott terasz 20,65 m2
Hasznos alapterület összesen: 118,00 m2
BRUTTÓ BEÉPÍTETT ALAPTERÜLET: 151,65 m2
Gázcirkós fűtés, padlófűtéses hőleadókkal.
Műanyag három rétegű nyílászárók.
Saját autóbealló, nagy méretű telek!
Hívjon bizalommal!
Floch Ildikó

Floch Ildikó
Inserent

Rufen Sie uns mit Vertrauen

+36-20-397- Zeig!

Andere eigene Anzeigen

Immobilienbüro
GDN Immobilien Netzwerk - Vác
+36 70 520 2966

Rufen Sie mich zurück

Ähnliche Immobilien