家庭别墅 出卖 Ráckeve - Szent Vendel út közelében

出卖 Ráckeve 家庭别墅
102 m2面积 3 房间
81 600 000 HUF 价格
389103识别码
更多信息

836 m2 地皮

外面是园子 风景

新建 状态

Tégla 架构

燃气(赫拉) 暖气

deplin confort 舒适感

自己的泊车位 停车

Mediu 公共交通

美国式厨房

有 有园子

2025 修建年

Eladó új építésű önálló családi házak Ráckevén!

Most épülő új lakóparkban kínálunk megvételre új építésű, önálló családi házakat. 16 db telek van a kivitelező tulajdonában, melyek 800-1000 nm közöttiek, ön még választhat!

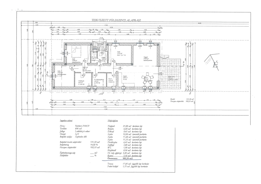
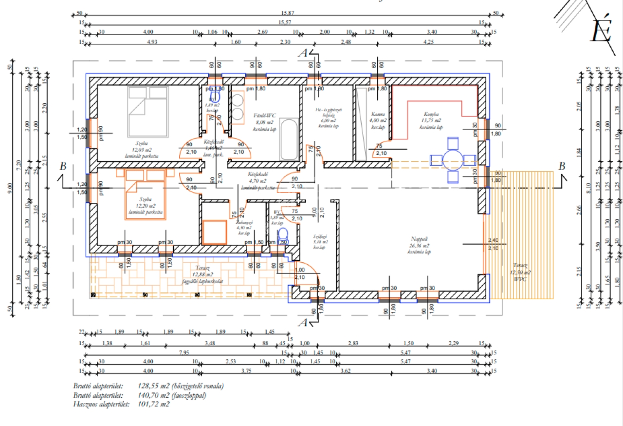
A választható ingatlanok alaprajz szerint:
1,- nappali + 2 hálószobás kialakítás nettó 102 nm - 81.600.000.-Ft,
2,- nappali + 3 hálószobás kialakítás nettó 110 nm - 88.000.000.-Ft,

A belső falak jelenleg még az ön igényei szerint alakíthatóak, illetve ha nagyobb alapterületű ingatlanra van szüksége az is kivitelezhető.

Műszaki paraméterek:
- porotherm 30-as tégla falak, 15 cm külső szigetelés,
- műanyag 3 rétegű nyílászárók redőnnyel, szúnyoghálóval szerelve,
- fűtést és a melegvizet gázkazán biztosítja padlófűtéses hőleadással,
- 3 db hűtő-fűtő klíma,
- burkolatok 10.000.-Ft/nm árig,
- beltéri ajtók 150.000.Ft/db árig,
- bejárati ajtó 300.000.-Ft -ig,
- szaniterek -Mofém,Grohe, vagy Alföldi tipusok kerülnek beépítésre,
- terasz burkolva,
- 1 autónak térkövezett beálló,
- oldalt beton kerítés, elől WPC,

Opcionálisan kérhető:
- Hibrid fűtésrendszer- a gázfűtés mellé hőszivattyút is szerelnek, ennek ára: 1.350.000.-Ft,
- 3 Kw napelem felszerelése 1.500.000.-Ft,
- belsőépítészeti munák a mellékelt fotók alapján, ennek ára megegyezés szerint.

A telkek közötti térkövezett utat ( 5 méter széles) , és a járdákat a kivitelező építi. A tulajdonos célja egy zárt lakópark kialakítása ahol a tervek alapján egy magánbölcsöde is épül.

Birtokbaadás: 2026. negyedik negyedéve.

Iskola, óvoda, orvosi rendelő, Penny, buszmegálló 5-10 perc sétával elérhető.

Amivel segítjük az Ön ingatlanvásárlását:
- ingyenes hitelügyintézés,
- jogi háttér,
- földhivatali ügyintézés,
- energetikai tanúsítvány,
- a vevő számára az ingatlanközvetítés ingyenes.

Irodánk 30 éves szakmai tapasztalattal áll ügyfelei rendelkezésére!

Várom szíves megkeresését!
Floch Ildikó

Floch Ildikó

随时给我们打电话

+36-20-397- 给我看

更多的广告

房产代理处
GDN 房产联盟 - Vác
+36 70 520 2966