双面别墅 出卖 Ráckeve - Kossuth Lajos u. környéke

出卖 Ráckeve 双面别墅
128 m2面积 3 + 1 房间
76 000 000 HUF 价格
381886识别码
更多信息

150 m2 地皮

街道 风景

新建 状态

Tégla 架构

8 m2 阳台

燃气(循环式) 暖气

Dupla komfort 舒适感

自己的车库 停车

Bun 公共交通

美国式厨房

有 有园子

2025 修建年

Délkelet 方向

Ráckevén csendes utcában 2 lakásos ikerházban 90 % készültségben eladó. 33% helyben előállított villamosenergia napelem rendszerrel. Minden támogatás igénybe vehető!

Ráckevén: Budapestől 40-km távolságra a Hév végállomástól és a busz végállomástól séta távolságra. Tesco, Aqualand és a kis-Dunapart is séta távolságra. A nagy-duna 5 km távolságra. Az MO -ás 30 km, a Savoyai kastély mögött. Magyarországon egyedülálló csónakos-piac 1,5 km.
Elhelyezkedés: Ráckeve északi részén az új fejlesztési övezetben.” nem újtelepi”
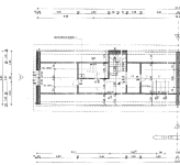
A lakás 90% készültségi állapotban van. 102 nm nettó alapterületű 2 szintes, +19 nm fűtött garázzsal. Összesen 121m2. 3 szoba amerikai konyha, nappali, fedett terasz, dupla komfort, gardrób. 33% helyben előállított villamosenergia, amiről napelemek gondoskodnak. A locsoláshoz fúrt kút biztosítja a vizet. Klíma kiállások előkészítve. Riasztórendszer kiépítve. Az konyhabútor elkészítéséhez szakembert tudunk biztosítani!
A lakások 1300 nm körülkerített telken találhatók. A ház:2024-es építési szabványnak megfelelően épült.
Rövid műszaki leírás.
C-12-16/kk beton sávalapozás, 30-as porotherm tégla a főfal 10-es porotherm a válaszfal, a födém vasbeton e-gerenda szerkezettel a héjazat leier betont cserép az eresz horganyzott bádog. Ablakok műanyag thermo 3 rétegű üveggel és gáz töltéssel, Antracit alu redőnyök és szúnyoghálók motoros mozgatással. Garázskapu antracit motoros mozgatással. Aljzatok 12 cm drivyt, homlokzat 15 cm drivyt, tető 25 cm kőzet gyapottal készült. A járda autó behajtó viacolor burkolattal rendelkezik 200 nm-en. A kapu elektromos mozgatású. A fűtés és melegvíz ellátásáról kombi cirkó kondenzációs gázkazán gondoskodik. A villamos energiaszámla csökkentéséről napelemek gondoskodnak.

Az ingatlanok eladási árai!
1. lakás 1. opció 82 M Ft 650 m2 -es telekkel
1. lakás 2. opció 76 M Ft 50 m2 -es előkertel
2. lakás 1. opció 82 M Ft 650 m2 -es telekkel
2. lakás 2. opció 88 M Ft 1300 m2 -es telekkel

FINANSZÍROZÁS:
Nálunk mindent egy helyen intézhet:
- hivatalos ingatlanközvetítés;
- szakszerű jogi képviselet;
- profi CSOK-PLUSZ, és hitelügyintézés: 16 Bank, több mint 100 konstrukció;

Kérésére, műszaki leírást, nagy-felbontású alaprajzot küldök!

VÁROM MEGTISZTELŐ HÍVÁSÁT!

A részletes adatvédelmi tájékoztató folyamatosan elérhető a www.gdn-ingatlan.hu/adatvedelem oldalon.
Borsós Attila

Borsós Attila

随时给我们打电话

+36-30-984- 给我看

更多的广告

房产代理处
GDN 房产联盟 - Vác
+36 70 520 2966